Khách thuê cần lưu ý gì trước khi hoàn trả mặt bằng văn phòng

Hướng dẫn các bước hoàn trả mặt bằng cho văn phòng

Hướng dẫn các bước hoàn trả mặt bằng văn phòng

Bạn là người được sếp giao phụ trách hạng mục hoàn trả mặt bằng văn phòng, nhưng chưa biết cần làm những gì, bắt đầu từ đâu. Trong bài viết này công ty An Phát sẽ hướng dẫn các bước thi công hoàn trả mặt bằng văn phòng cần thiết để quá trình diễn ra suôn sẻ và tránh các tranh chấp với bên cho thuê, bạn cần thực hiện các công việc sau:

  • 1. Kiểm tra hợp đồng thuê
  • 2. Tổng hợp bản vẽ thi công, hoàn công
  • 3. Tìm kiếm lựa chọn nhà thầu hoàn trả
  • 4. Làm việc với ban quản lý tòa nhà
  • 5. Kiểm tra và bám sát theo tiến độ thi công của nhà thầu
  • 6. Lập biên bản bàn giao và kết thúc hợp đồng thuê
  • 7. Hạch toán và thanh toán các chi phí còn lại

1. Kiểm tra lại hợp đồng thuê

Kiểm tra lại hợp đồng thuê giúp bạn nắm rõ được thời gian còn lại và điều khoản trong hợp đồng thuê, biết được mặt bằng thuê đã cải tạo những hạng mục gì, điều khoản chấm dứt hợp đồng... và nhiều thứ khác trong đó có quyền và nghĩa vụ của bên thuê và cho thuê khi bàn giao mặt bằng. Việc nắm rõ tình trạng mặt bằng và thời gian thuê sẽ giúp bạn lên kế hoạch thi công hoàn trả được tốt nhất mà không bị phạt cọc.

2. Tổng hợp bản vẽ thi công, hoàn công 

Bạn cần tổng hợp, tìm kiếm các bản vẽ sau: bản vẽ sơ đồ hiện trạng, bản vẽ hoàn công, từ đó sẽ biết được những mục nào đã sửa chữa, thiết bị nào được thay thế di dời so với thiết kế ban đầu. Các thay đổi nằm ở 3 mục là: trần, tường, sàn. Ở mỗi hạng mục liệt kê chi tiết đầu việc cần làm để sau này làm việc với nhà thầu thi công.

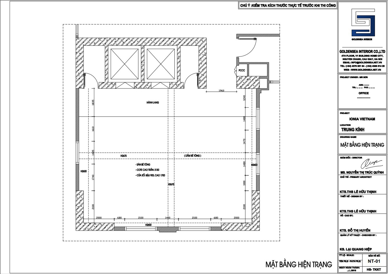
2.1 Bản vẽ hiện trạng

Mặt bằng hiện trạng văn phòng

Là tài liệu thể hiện tình trạng thực tế của không gian văn phòng sau khi cải tạo nó mô tả các yếu tố như:

- Kết cấu: Vị trí tường, cột, dầm, sàn, trần, cửa, cửa sổ.

- Hệ thống kỹ thuật: Điện, nước, điều hòa, thông gió, PCCC, loa...

- Nội thất: Bố trí bàn ghế, vách ngăn, quầy lễ tân, hệ thống chiếu sáng...

- Các hạng mục khác: Biển hiệu, lối đi, thang máy, lối thoát hiểm...

Mục đích của bản vẽ hiện trạng văn phòng

🔹 Làm cơ sở để cải tạo hoặc thiết kế lại văn phòng (để biết cần thay đổi gì, giữ lại gì).

🔹 Dùng để bàn giao hoặc hoàn trả mặt bằng (xác định các thay đổi so với hiện trạng ban đầu).

🔹 Làm hồ sơ pháp lý (phục vụ cho việc xin cấp phép, nghiệm thu, hoàn công...).

2.2 Bản vễ hoàn công 

Bản vẽ hoàn công mặt bằng văn phòng

Bản vẽ hoàn công là bản vẽ mặt bằng ban đầu của văn phòng, được tòa nhà bàn giao cho bên thuê, Đây là tài liệu quan trọng trong quá trình nghiệm thu, bàn giao và bảo trì công trình. Thi công hoàn trả mặt bằng phải dựa vào sơ đồ bản vẽ hoàn công để thực hiện.

Nội dung của bản vẽ hoàn công cũng thể hiện rõ các mục như:

✅ Hệ thống kết cấu: Tường, cột, sàn, dầm, móng… theo hiện trạng ban đầu.

✅ Hệ thống kỹ thuật: Điện, nước, điều hòa, thông gió, PCCC… theo hiện trạng ban đầu.

✅ Các thiết bị, vật liệu thực tế: Loại vật liệu, kích thước, vị trí lắp đặt theo hiện trạng ban đầu.

Tại sao cần bản vẽ hoàn công?

🔹 Nghiệm thu & bàn giao công trình: Là tài liệu chính để kiểm tra công trình trước khi đưa vào sử dụng.

🔹 Cơ sở pháp lý: Giúp hoàn thành thủ tục xin cấp phép, hoàn công công trình.

🔹 Hỗ trợ bảo trì, sửa chữa sau này: Dễ dàng xác định vị trí hệ thống kỹ thuật, tránh hư hỏng khi nâng cấp hoặc sửa chữa.

🔹 Đối chiếu với hợp đồng thi công: Kiểm tra xem nhà thầu có thi công đúng theo thiết kế hay không.

3. Tìm kiếm lựa chọn nhà thầu hoàn trả

Tìm kiếm lựa chọn nhà thầu hoàn trả mặt bằng uy tín

Nhà thầu thi công rất quan trọng, vì thế khi tìm kiếm và lựa chọn nhà thầu bạn phải tìm được đơn vị thi công chuyên nghiệp và uy tín.

- Nhà thầu có nhiều kinh nghiệm thi công hoàn trả mặt bằng, đã làm ở nhiều tòa nhà là một lợi thế.

- Hỏi ban quản lý tòa nhà: Các ban quản lý thường sẽ quen biết rất nhiều đơn vị thi công hoàn trả

- Tìm kiếm trên mạng, Google, Facebook, Zalo

- Tham khảo fanpage, website của các công ty chuyên về hoàn trả mặt bằng.

- Kiểm tra hồ sơ năng lực hoặc các dự án hoàn trả trước đó.

- Xin phản hồi, đánh giá của các khách hàng trước .

Mời bạn tham khảo dịch vụ thi công hoàn trả mặt bằng văn phòng của công ty An Phát, có thể chúng tôi sẽ là đối tác của các bạn trong tương lai.

4. Làm việc với ban quản lý tòa nhà

Làm việc với ban quản lý tòa nhà

Tại sao cần làm việc với ban quản lý? 

Bạn cần có cuộc họp 3 bên giữa khách thuê (bạn), nhà thầu thi công tháo dỡ hoàn trả, và ban quản lý tòa nhà để trao đổi các công việc cần làm. 

1. Giới thiệu nhà thầu thi công để ban quản lý biết (Danh sách công nhân vào ra để ban quản lý cấp thẻ)

2. Để nhà thầu nắm được thủ tục của tòa nhà, cần tuân thủ các quy định thi công.

3. Nhà thầu có thể trao đổi những gì chưa rõ hoặc những yêu cầu khác từ tòa nhà như: chi tiết về màu sơn, mã sơn, sàn, hệ thống điện, PCCC... Nắm được thời gian thi công, quy định chuyển vật liệu, vệ sinh, an toàn lao động. 

Làm việc với đội vận hành tòa nhà

5. Kiểm tra và bám sát theo tiến độ thi công của nhà thầu

Luôn theo sát kế hoạch thi công của nhà thầu, nhắc nhở đảm bảo đúng tiến độ bàn giao mặt bằng theo hợp đồng ký kết.

Kiểm tra giám sát thi công hoàn trả mặt bằng văn phòng

6. Lập biên bản bàn giao và kết thúc hợp đồng thuê

Làm biên bản bàn giao mặt bằng và kết thúc hợp đồng thuê

Kiểm tra hiện trạng mặt bằng, đối chiếu với biên bản bàn giao ban đầu. Đảm bảo các hạng mục đã được khôi phục đúng yêu cầu.

Lập biên bản bàn giao:

🔹 Thông báo cho BQL trước ít nhất 3-7 ngày để hẹn lịch nghiệm thu.

🔹 Làm biên bản bàn giao, ghi rõ tình trạng mặt bằng sau khi hoàn trả.

🔹 Ký xác nhận bàn giao giữa bên thuê và BQL hoặc chủ đầu tư.

7. Hạch toán và thanh toán các chi phí còn lại

Thanh toán tiền thuê còn thiếu: Nếu còn khoản tiền thuê chưa thanh toán, cần hoàn tất trước khi bàn giao.

Thanh toán các hóa đơn dịch vụ: Bao gồm tiền điện, nước, phí quản lý, phí vệ sinh hoặc các chi phí liên quan khác.

Lưu ý tiền cọc: Đảm bảo hoàn thành mọi điều khoản trong hợp đồng để được hoàn trả tiền cọc đúng hạn.

Hoàn trả mặt bằng văn phòng là một bước quan trọng trong quá trình kết thúc hợp đồng thuê. Việc tuân thủ các điều khoản hợp đồng, khôi phục hiện trạng, vệ sinh sạch sẽ và lập biên bản bàn giao rõ ràng sẽ giúp bạn tiết kiệm thời gian, chi phí và đảm bảo được hoàn trả tiền cọc đầy đủ. Nếu cần hỗ trợ chuyên nghiệp, đừng ngần ngại thuê các đơn vị dịch vụ uy tín để đảm bảo mọi việc diễn ra suôn sẻ. 

Liên hệ dịch vụ hoàn trả mặt bằng An Phát để tư vấn và báo giá.


THỜI TIẾT 7 NGÀY TỚI

ĐẶT LỊCH KHẢO SÁT TƯ VẤN VÀ BÁO GIÁ CHUYỂN NHÀ


download hợp đồng vận chuyển
Thuê taxi tải chuyển đồ giá rẻ Hà Nội
Dịch vụ chuyển nhà trọn gói

Thông tin hữu ích

5 Lỗi sai lầm thường gặp khi hoàn trả mặt bằng và cách tránh mất cọc

Chỉ cần mắc một trong 5 lỗi sai lầm dưới đây, doanh nghiệp của bạn có nguy cơ mất 60% đến 80% tiền cọc. Đọc ngay để biết cách phòng tránh nhé!

Mâm cỗ cúng nhập trạch về nhà mới có những gì?

Hướng dẫn mua sắm chuẩn bị cho mâm cỗ cúng nhập trạch về nhà mới, đầy đủ các món chay mặn để bạn tham khảo.

Top 8 dịch vụ chuyển văn phòng uy tín tại Hà Nội

Top 8 công ty có dịch vụ chuyển văn phòng tốt nhất tại Hà Nội theo tiêu chí đánh giá của khách hàng.

Hướng dẫn chi tiết cách bốc bát hương về nhà mới chuẩn phong thủy

Cách bốc bát hương chuẩn phong thủy mang lại bình an may mắn cho gia chủ. Đây là việc rất quan trọng chắc chắn phải làm, bạn đã biết chưa?

Bật mí bí mật trấn trạch nhà ở chuẩn phong thủy

Những bí mật trong trấn trạch nhà ở giúp mang lại bình an, may mắn và tài lộc, bạn đã biết chưa?

Chat Zalo
goto top
0966120133 0946632686